Imagine 22

Apartament 2 camere | 45 mp | 6 mp balcon | Cartier Europa

ID: AV7403 Cluj-Napoca, Europa 24
130.000€ + TVA 136.000€ + TVA
Descriere
Va propunem spre vanzare un apartament modern cu 2 camere, atent compartimentat, situat intr-un bloc nou din Cartierul Europa, una dintre cele mai cautate zone rezidentiale. Proprietatea este ideala atat pentru locuire proprie, cat si pentru investitie, oferind confort, functionalitate si un stil de viata urban echilibrat.

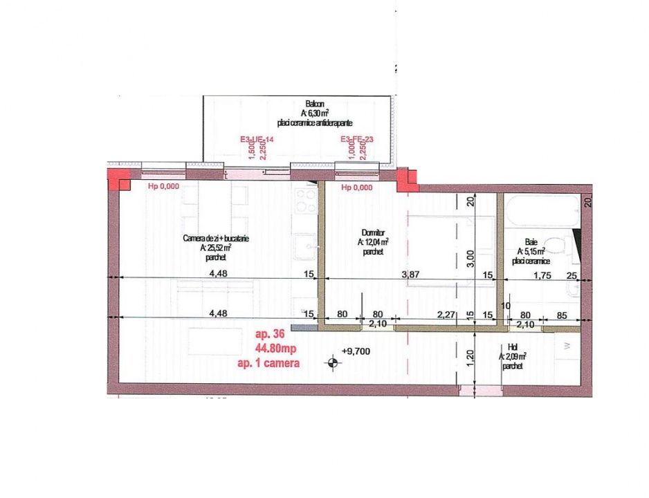
Suprafata utila: 44.80 mp + balcon: 6 mp

Compartimentare practica si eficienta:
- Hol de acces
- Living luminos cu bucatarie open space, ideal pentru socializare
- Dormitor bine proportionat, destinat zonei de odihna
- Baie
- Balcon spatios, perfect pentru relaxare

Stadiu de predare: semifinisat
- Pereti tencuiti si gletuiti
- Sapa autonivelanta
- Instalatii electrice si sanitare trase pe pozitii
- Instalatie pregatita pentru incalzire in pardoseala (centrala pe bloc)
- Usa de intrare montata
- Balcon hidroizolat si placat

Detalii despre imobil:
- Bloc nou, cu spatii comerciale la parter
- Parcari subterane la demisol
- Comunitate moderna, bine organizata

Termene estimate:
- Predare apartament: august 2026
- Obtinere carte funciara: octombrie 2026

Avantaje cheie:
- Apartament luminos si bine compartimentat
- Posibilitate de alegere a etajului
- Separare eficienta intre zona de zi si zona de noapte

Posibilitati multiple de personalizare la predare

Parcare subterana: 15.000 euro + TVA
Pretul afisat nu include TVA

Pentru informatii suplimentare, detalii de pret sau programarea unei vizionari, va stam la dispozitie.

ID intern - AV7403
Caracteristici
  • ID:AV7403
  • Nr. camere:2
  • Nr. dormitoare:1
  • S. utila:44.80 mp
  • S. balcoane:6.30 mp
  • S. utila totala:51.00 mp
  • Comp.:Semidecomandat
  • Confort:1
  • Etaj:Etaj 2
  • Nr. bucatarii:1
  • Nr. bai:1
  • Nr. balcoane:1
  • An constructie:2025
  • Structura:Beton
  • Regim inaltime:D+P+3
Specificatii
Curent
Apa
Canalizare
Acces internet
Centrala imobil
Incalzire pardoseala
Izolatie Exterior
Ferestre PVC
Usa intrare Metal
Bucatarie Nemobilata
Apometre
Contor gaz
Nemobilat
Interfon
Videointerfon
Lift
Localizare
Marius Calciu
Consilier Imobiliar Senior
Esti interesat de aceasta proprietate ?
Proprietati similare
Imagine 2749
Garsoniera | 28 mp | zona Farmec
Cluj-Napoca, Marasti / Bucuresti 118.000€
1 camera 1 baie 28mp
Imagine 2524
| Apartament 1 camere | 31 mp | Et intermediar | Manastur - zona Big |
Cluj-Napoca, Manastur / Big 124.900€
1 camera 1 baie 31mp
Imagine 2438
Apartament 1 Camera | 31 mp | parcare | zona Str Bucuresti
Cluj-Napoca, Marasti / Bucuresti 110.900€
1 camera 1 baie 31mp
Imagine 2839
| Apartament 2 camere | 55 mp | Parcare | Etaj intermediar | Calea Turzii |
Cluj-Napoca, Calea Turzii 145.000€
2 camere 1 baie 55mp
Imagine 2262
| Apartament 3 camere | 50 mp | Mobilat | Manastur - Zona Big |
Cluj-Napoca, Manastur / Big 135.000€
3 camere 1 baie 49mp
Imagine 1863
| Apartament 2 camere | 54 mp | Terasa | Floresti - Zona Str. Razoare |
Floresti, Vivo (Polus Center) 146.000€ 150.000€
2 camere 1 baie 54mp