Imagine 22

COMISION 0 % | Casa Individuala | 100 mp utili | 500 mp curte | Popesti Vale

ID: AV6938 Popesti, Central 8
200.000€
Descriere
Avangard imobiliare va prezinta cu COMISION 0% la cumparare, 5 case individuale, construite in anul 2024 in zona Popesti Vale. Amplasate intr-o zona linistita pentru cei care doresc să ducă o viață confortabilă cu vedere frumoasă la vegetatiile mature si in aproprierea padurii.

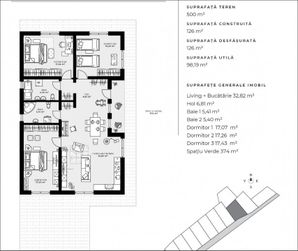
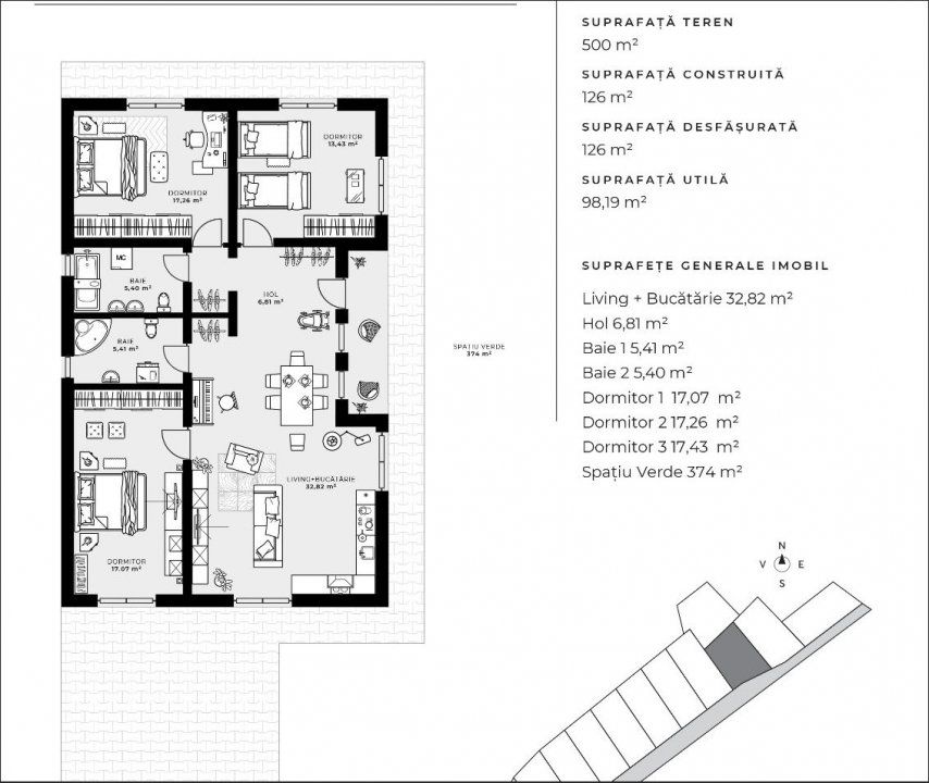
Proprietatea este desfasurata pe un singur nivel, cu o orientare sud si dispune de: o camera de zi cu bucatarie + dinning, 2 dormitoare, o baie, dormitor principal cu baie proprie. Astfel, acesta este desfasurata pe o suprafata de 98 mp utili, precum si teren in suprafata de 500 mp.

Casele se predau la stadiul de semifinisat ceea ce vă permite să creați un design personalizat care să se potrivească stilului și bugetului dumneavoastra, avand urmatorele caracteristici: polistiren de 15 cm, racordata la utilitati, incalzire in pardoseala si centrala termica, instalatii electrice si sanitare pe pozitie, glet pe pereti si sapa, gard imprejmuitor si curte amenajata cu gazon.

Casele sunt in curs de edificare, predarea fiind estimata pentru sfarsitul anului 2024 iar CF-urile in prima parte a anului 2025.

Unul dintre beneficiile viitorilor proprietari va fi preluarea casei finisate exterior, cu o curte gata amenajata.

Pentru confortul dumneavoastra, exista posibilitatea de a parca autovehiculul intr-un spatiu amenajat.

ID intern: AV6938

Daca oferta este pe placul tau, ramane doar sa o vizionam impreuna!

*Localizarea pe harta nu reprezinta adresa exacta a imobilului, fiind cu caracter orientativ.
**Informatiile referitoare la aceasta proprietate au fost furnizate de catre vanzator si nu ne asumam raspunderea pentru modificari aparute ulterior!
Caracteristici
  • ID:AV6938
  • Nr. camere:4
  • Nr. dormitoare:3
  • S. utila:98.00 mp
  • S. construita:126.00 mp
  • S. teren:500.00 mp
  • Nr. bucatarii:1
  • Nr. bai:2
  • Nr. parcari:2
  • Front stradal:15.00 m
  • Nr. fronturi:1
  • An constructie:2024
  • Structura rezistenta:Caramida
Specificatii
Curent
Apa
Canalizare
Gaz
Centrala proprie
Incalzire pardoseala
Izolatie Exterior
Ferestre Aluminiu
Ferestre Termopan
Usa intrare Metal
Apometre
Contor gaz
Curte
Gradina
Localizare
Marius Calciu
Consilier Imobiliar Senior
Esti interesat de aceasta proprietate ?
Proprietati similare
Imagine 1659
Casă tip duplex de vânzare – cartier privat, construcție nouă, CF disponibil
Floresti, Vivo (Polus Center) 210.000€ 219.900€
5 camere 3 bai 110mp
Imagine 361
Locuință individuală cu compartimentare practică, zonă aerisită – Chinteni
Chinteni, Central 190.000€ + TVA 199.900€ + TVA
4 camere 3 bai 120mp
Imagine 326
Casă de vânzare – proiect finalizat, intimitate și acces privat, Chinteni
Chinteni, Exterior Sud 180.000€ + TVA 199.900€ + TVA
4 camere 3 bai 120mp
Imagine 16
0% comision Exclusivitate
Istorie și potențial – Proprietate unică în Cricau, județul Alba
Cricau, Central 185.000€ 189.000€
15 camere 18 bai 634mp