Imagine 22

Comision 0% | Casa individuala | 140 mp | 800 mp teren | Europa

ID: AV6128 Cluj-Napoca, Europa 20
1.300.000€
Descriere
Avangard imobiliare va prezinta o casa individuala, construita in anul 2019 in zona Europa . Amplasata intr-o zona linistita pentru cei care doresc să ducă o viață confortabilă fără stres, înconjurați de covoare verzi cu vedere frumoasă la vegetatile mature unde facilitățile de lux și frumusețea naturii se reunesc ceea ce ofera o priveliste minunata asupra orasului .

Astfel, aceasta este desfasurata pe o suprafata de 140 mp , completata de 3 terase in suprafata totala de 33 mp precum si teren aferent in suprafata de 800 mp.

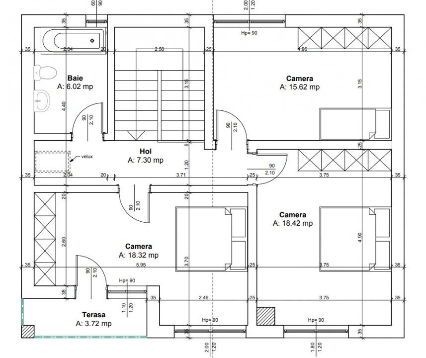
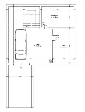
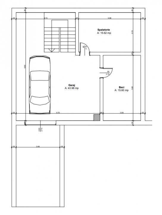
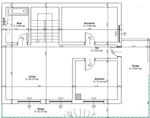
Proprietatea are un regim de inaltime de tip D+P+E si este compartimentata astfel :
Demisol : spalatorie, garaj, beci
Parter : hol, bucatarie, baie, living, dormitor plus doua terase
Etaj : hol, 3 dormitoare , baie , terasa

Casa prezinta finisaje moderne si se vinde partial mobilata.

Pentru confortul dumneavoastra, in curte exista posibilitatea de a parca autovehiculul atat in curte cat si in garaj.

Daca oferta este pe placul tau, ramane doar sa o vizionam impreuna!

*Localizarea pe harta nu reprezinta adresa exacta a imobilului, fiind cu caracter orientativ.
ID Intern: AV6128

**Informatiile referitoare la aceasta proprietate au fost furnizate de catre vanzator si nu ne asumam raspunderea pentru modificari aparute ulterior!
Caracteristici
  • ID:AV6128
  • Nr. camere:7
  • Nr. dormitoare:4
  • S. utila:140.00 mp
  • S. terase:33.40 mp
  • S. construita:210.00 mp
  • S. teren:715.00 mp
  • Nr. bucatarii:1
  • Nr. bai:2
  • Front stradal:20.00 m
  • Nr. fronturi:1
  • An constructie:2019
  • Regim inaltime:S+P+M
Specificatii
Curent
Apa
Canalizare
Gaz
Fibra optica
Centrala proprie
Calorifere
Izolatie Exterior
Vopsea lavabila
Faianta
Parchet
Gresie
Ferestre PVC
Ferestre Termopan
Usa intrare PVC
Usa interior Lemn
Pivnita
Spatiu depozitare
Bucatarie Mobilata
Apometre
Contor gaz
Partial mobilat
Curte
Localizare
Marius Calciu
Consilier Imobiliar Senior
Esti interesat de aceasta proprietate ?
Proprietati similare
0% comision Imagine 50
Casa Individuala | 258 mp utili | 435 mp teren | str Bisericii Ortodoxe
Cluj-Napoca, Semicentral 1.200.000€
7 camere 4 bai 258mp