Imagine 22

Casă individuală de vânzare - ansamblu privat de case moderne

ID: AV7588 Cluj-Napoca, Manastur / Vivo (Polus Center) 8
335.000€ 365.000€
Descriere
Vă propunem spre vânzare o casă individuală situată într-un cartier privat și amenajat, în zona Vivo – , o locație liniștită și bine conectată cu orașul.

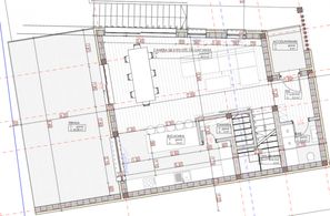
Detalii proprietate:

Suprafață utilă: 140 mp

Teren: 250 mp

Predare: la stadiul de semifinisat

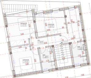
Regim de înălțime: demisol + parter + etaj

📐 Compartimentare:

Demisol: garaj cu loc de parcare

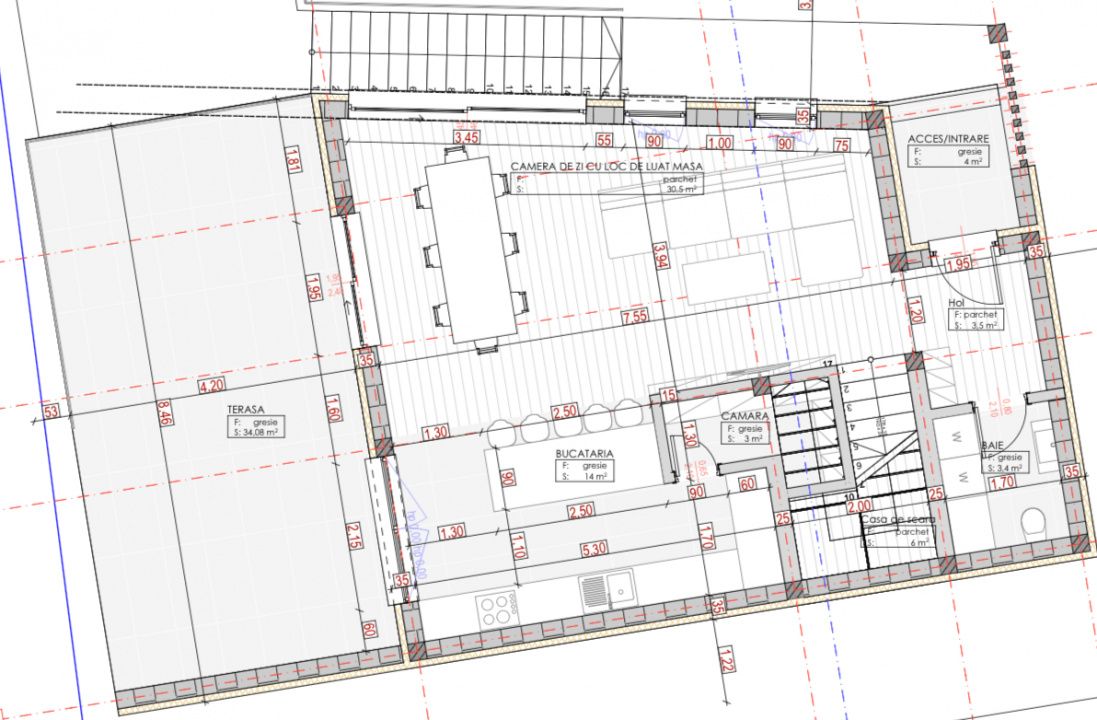
Parter: hol de acces, baie, cămară, living spațios, bucătărie cu ieșire spre terasă

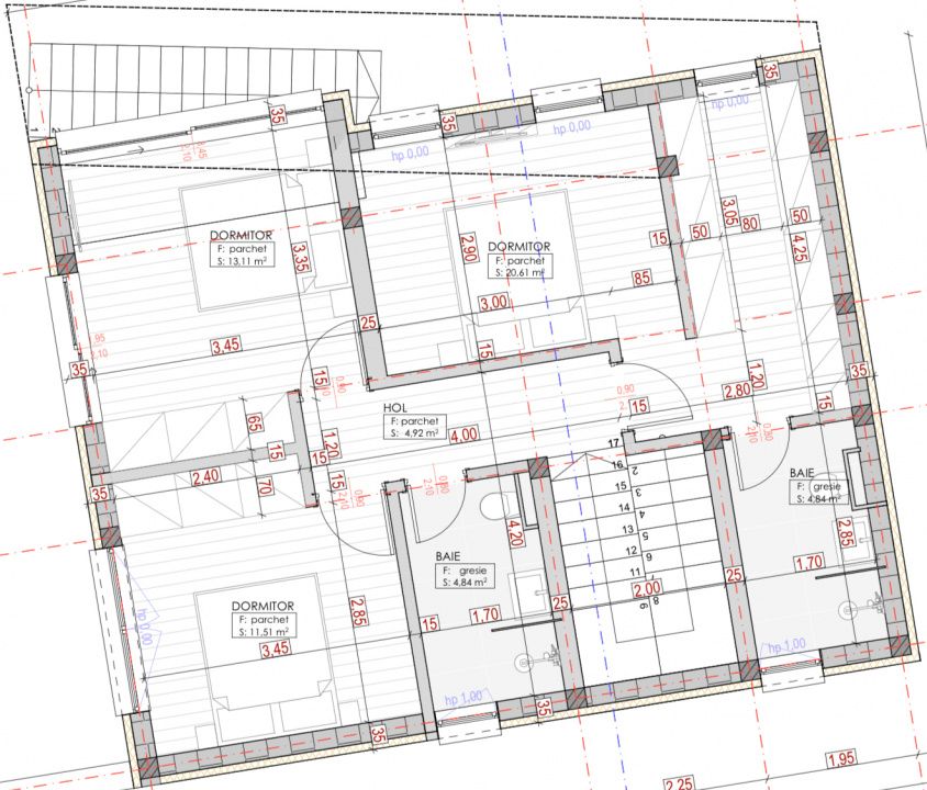
Etaj: trei dormitoare, hol, două băi

🔑 Avantaje:

parte dintr-un ansamblu privat de case moderne

acces privat și infrastructură completă

poziționare excelentă, aproape de Vivo și principalele artere de acces

O locuință modernă, amplasată într-o zonă liniștită, perfectă pentru familii care își doresc confort, intimitate și acces rapid către oraș.

ID INTERN - AV7588
Caracteristici
  • ID:AV7588
  • Nr. camere:4
  • Nr. dormitoare:3
  • S. utila:140.00 mp
  • S. terase:34.00 mp
  • S. teren:250.00 mp
  • Nr. bucatarii:1
  • Nr. bai:3
  • Nr. parcari:1
  • Nr. garaje:1
  • Nr. fronturi:1
  • An constructie:2025
  • Structura rezistenta:Beton
  • Regim inaltime:D+P+1
  • Orientare:Mixta
Specificatii
Curent
Apa
Canalizare
Gaz
Acces internet
Centrala proprie
Incalzire pardoseala
Izolatie Exterior
Ferestre PVC
Usa intrare PVC
Bucatarie Nemobilata
Bucatarie Neutilata
Apometre
Contor gaz
Nemobilat
Gradina
Localizare
Marius Calciu
Consilier Imobiliar Senior
Esti interesat de aceasta proprietate ?
Proprietati similare
TOP Imagine 1839
Unitate Duplex | 127 mp utili | 164 mp teren | cartier Dambul Rotund
Cluj-Napoca, Dambul-Rotund 339.000€
4 camere 3 bai 127mp
Imagine 2155
Unitate duplex | 185.5 mp utili | 450 mp teren | panorama | Voronet
Cluj-Napoca, Iris 385.000€
5 camere 4 bai 185.50mp
Imagine 850
| Casa individuala cu 5 camere | 211 mp | 450 mp teren | Zona Vivo |
Floresti, Vivo (Polus Center) 354.900€
5 camere 2 bai 211mp
Imagine 374
Casă individuală cu suprafață generoasă, teren mare și priveliște plăcută !
Chinteni, Exterior Vest 369.900€
4 camere 4 bai 194mp
Imagine 2307
Duplex modern | 120 mp | teren 250 mp | Str. Oasului - Iris
Cluj-Napoca, Iris 325.000€
4 camere 2 bai 120mp
0% comision Imagine 1302
Casă Individuală cu Panoramă de Vis – Feleacu, 123 mp utili, teren 750 mp
Feleacu, Central 372.000€ 389.000€
4 camere 3 bai 123mp