Imagine 22

Unitate duplex | 185.5 mp utili | 450 mp teren | panorama | Voronet

ID: AV7697 Cluj-Napoca, Iris 23
385.000€
Descriere
Va propunem spre vanzare o casa tip duplex situata intr-una dintre cele mai apreciate zone rezidentiale private din Cluj-Napoca – Cartierul Voronet. Proprietatea se remarca prin spatiu generos, compartimentare eficienta si o panorama deosebita asupra orasului, fiind ideala pentru o familie care cauta confort, intimitate si un stil de viata modern.

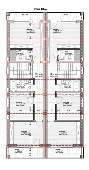
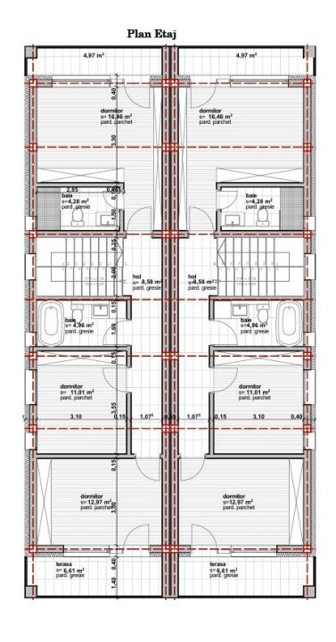
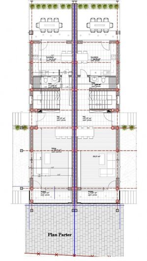
Casa are o suprafata utila de 185,5 mp si este amplasata pe un teren de 450 mp, cu o curte libera de peste 390 mp. Imobilul este dispus pe patru niveluri: demisol, parter, etaj si etaj retras, oferind o organizare clara intre zona de zi si cea de noapte.

Compartimentarea include 5 camere si 4 bai, cu zone de zi luminoase, dormitor matrimonial cu baie proprie si dressing, precum si multiple spatii exterioare perfecte pentru relaxare. Proprietatea beneficiaza de un balcon de 5 mp, 3 terase insumand 28 mp si 2 terase rooftop de aproximativ 32 mp, cu privelisti spectaculoase asupra orasului si imprejurimilor.

In plus, casa dispune de 2 locuri de parcare si un garaj cu acces direct in interior, un detaliu important pentru confortul zilnic. Expunerea sudica asigura lumina naturala pe tot parcursul zilei.

Cartierul Voronet este recunoscut pentru infrastructura moderna, strazi asfaltate, toate utilitatile disponibile, acces facil la mijloacele de transport in comun si legatura rapida cu orasul. Zona ofera un cadru linistit, aerisit, cu mult verde, fiind ideala pentru familii.

Termenul estimat de finalizare este August 2026.
ID intern: AV7697
Aceasta casa duplex din Cluj-Napoca reprezinta o oportunitate rara pentru cei care cauta spatiu, calitate si o locatie premium.
Caracteristici
  • ID:AV7697
  • Nr. camere:5
  • Nr. dormitoare:4
  • S. utila:185.50 mp
  • S. terase:55.00 mp
  • S. construita:232.00 mp
  • S. teren:450.00 mp
  • Nr. bucatarii:1
  • Nr. bai:4
  • Nr. balcoane:2
  • Nr. parcari:2
  • Nr. garaje:1
  • Front stradal:10.00 m
  • Nr. fronturi:1
  • An constructie:2026
  • Structura rezistenta:Caramida
  • Regim inaltime:D+P+2
  • Orientare:Mixta
Specificatii
Curent
Apa
Canalizare
Gaz
Fibra optica
Centrala proprie
Incalzire pardoseala
Izolatie Exterior
Ferestre Aluminiu
Ferestre Termopan
Usa intrare Metal
Apometre
Contor gaz
Nemobilat
Curte
Localizare
Marius Calciu
Consilier Imobiliar Senior
Esti interesat de aceasta proprietate ?
Proprietati similare
TOP Imagine 1839
Unitate Duplex | 127 mp utili | 164 mp teren | cartier Dambul Rotund
Cluj-Napoca, Dambul-Rotund 339.000€
4 camere 3 bai 127mp
Imagine 2500
| Casa individuala cu 5 camere | 211 mp | 450 mp teren | Zona Vivo |
Floresti, Vivo (Polus Center) 354.900€
5 camere 2 bai 211mp
Imagine 1957
Casă individuală de vânzare - ansamblu privat de case moderne
Cluj-Napoca, Manastur / Vivo (Polus Center) 335.000€ 365.000€
4 camere 3 bai 140mp
Imagine 374
Casă individuală cu suprafață generoasă, teren mare și priveliște plăcută !
Chinteni, Exterior Vest 369.900€
4 camere 4 bai 194mp
0% comision Imagine 1302
Casă Individuală cu Panoramă de Vis – Feleacu, 123 mp utili, teren 750 mp
Feleacu, Central 372.000€ 389.000€
4 camere 3 bai 123mp
Imagine 2314
Duplex modern | 120 mp utili | 275 mp teren | mobilat\utilat | Vivo Mall
Floresti, Tauti 329.000€
4 camere 2 bai 120mp